設計者:汪竑佑
指導老師:張懷文
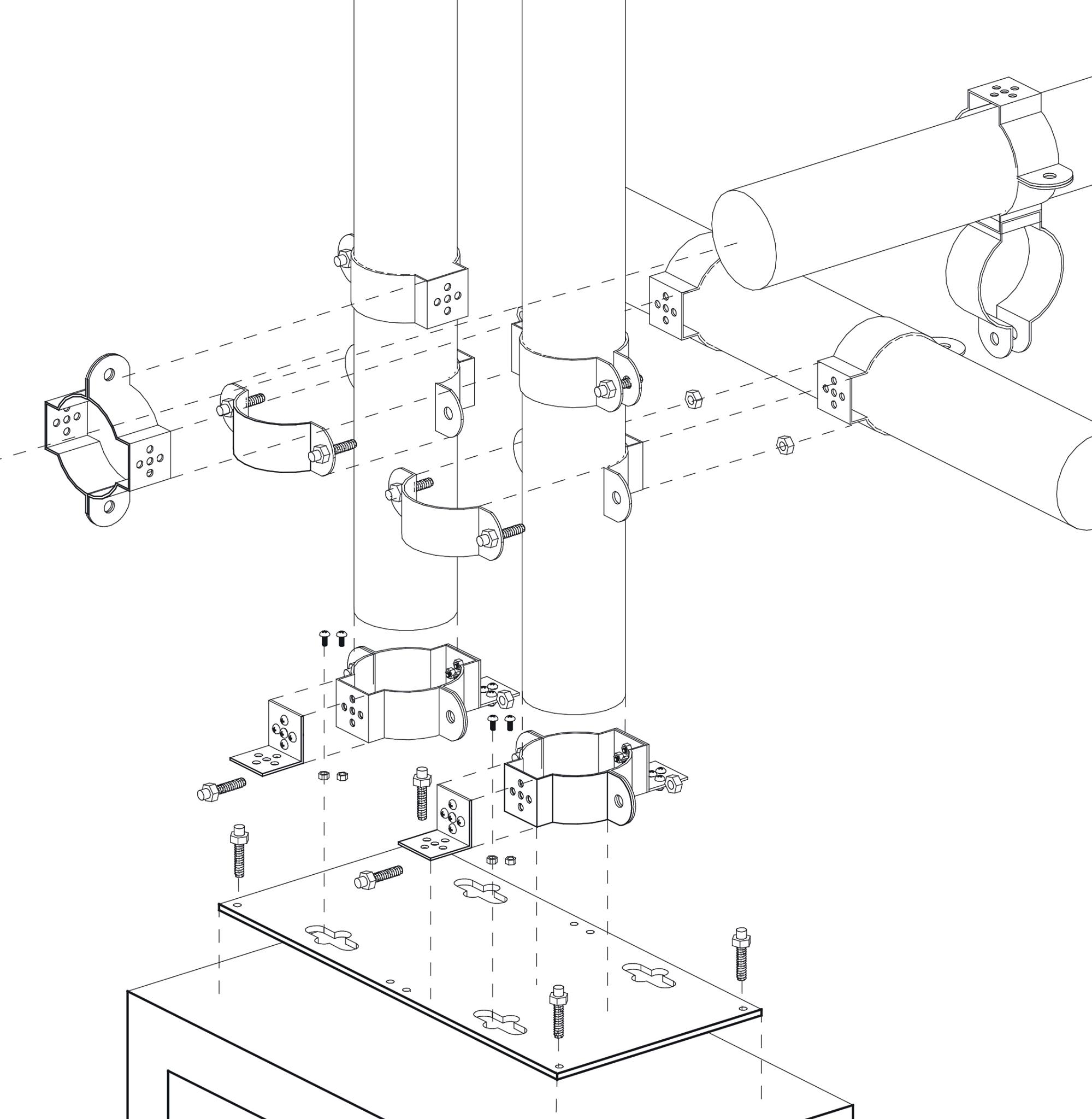
構築│竹構
[構築│竹構 ]
這個設計以開發竹構的連接細部為方法,讓易於取得的竹子能在簡易工法下快速組裝。同時單元跟單元間也可以透過簡單的帆布構造創造出更多的空間,而就本身的模具也能做多種的組合,垂直向上或水平發展皆可。
構築│竹構
因為氣候異常,未來的天然災害將會越來越多,因此希望設計出一個能快速組裝的單元空間。因為構造需要輕量化,同時減低對土地的負荷,當遇到災難發生前後,也可以吊著移動,以此解決災難發生時避難空間不足的問題,另外也可以解決台灣在災後重建的時效性 。










